ZZYP型自力式壓力調節閥概述:
ZZY型自力式壓力調節閥無需外加能源,利用被調介質自身能量為動力源,引入執行機構控制閥芯位置,改變兩端的壓差和流量,使閥前(或閥后)壓力穩定。具有動作靈敏,密封性好,壓力設定點波動小等優點,廣泛應用于氣體、液體及蒸汽介質減壓穩壓或泄壓穩壓的自動控制。本系列產品有單座(ZZYP)、套筒(ZZYM)、雙座(ZZYN)三種結構:執行機構有薄膜式、活塞式二種:作用型式有減壓用閥后壓力調節(B型)和泄壓用閥前壓力調節(K型)。產品公稱壓力等級有PN16、40、64;閥體口徑范圍DN20~300;泄漏量等級有II級、IV級和VI能三檔;流量特性為快開;壓力分段調節從15~250MPa。可按需要組合滿足用戶工況要求。
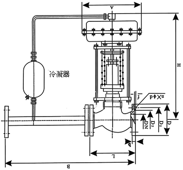
閥前調節壓力(K)型、閥后調節壓力(B)型 安裝典型:




ZZYP型自力式壓力調節閥是由閥體、閥座、閥芯、平衡彈簧等部件組成,是一種無需外加能源,利用被調節介質自身壓力變化來進行自動調節的閥門,是根據力學原理將被控介質引入執行機構產生力作用推動,控制閥芯元件上下位移達到自動調節,閥前或閥后恒壓或減壓的節能型產品。該產品zui大的特點是能在無電、無氣的場所工作,壓力設定值在運行中可隨意調整。采用快開流量特性,動作靈敏、密封性能好,廣泛應用于石油、化工、電站、輕工、印染等各種工業設備中氣體、液體、蒸汽等介質壓力的自動控制。
【一】本系列產品執行機構有:薄膜式、活塞式兩種;作用形式有:閥前壓力調節(泄壓持壓型),閥后壓力調節(減壓穩壓型);附設隔溫冷凝罐可在≤350℃溫度下使用。根據不同的工況條件可選用不同的閥芯結構型式以及不同執行機構,以達到很好的控制效果。
【二】主要零部件材質:
材料代號 |
C(WCB) |
P(304) |
R(316) |
|
主要 零 部件 |
閥體 |
WCB(ZG230-450) |
ZG1Cr18Ni9Ti(304) |
ZG1Cr18Ni12Mo2Ti(316) |
閥芯、閥座 |
1Cr18Ni9Ti(304) |
1Cr18Ni9Ti(304) |
1Cr18Ni12Mo2Ti(316) |
|
閥桿 |
1Cr18Ni9Ti |
1Cr18Ni9Ti |
1Cr18Ni12Mo2Ti |
|
膜片 |
丁睛橡膠、乙丙橡膠、氯丁膠、耐油橡膠 |
|||
膜蓋 |
A3、A4鋼涂四氟乙烯 |
|||
填料 |
聚四氟乙烯、柔性石墨 |
|||
彈簧 |
60Si2Mn |
|||
導向套 |
HPb59-1 |
|||
【三】主要技術參數
公稱通徑DN(mm) |
20 |
25 |
32 |
40 |
50 |
65 |
80 |
100 |
125 |
150 |
200 |
|
額定流量系數Kv |
7 |
11 |
20 |
30 |
48 |
75 |
120 |
190 |
||||
額定行程(mm) |
8 |
10 |
14 |
20 |
25 |
40 |
50 |
|||||
允許壓差(MPa) |
2.5 |
2.0 |
1.6 |
1.0 |
||||||||
公稱壓力(MPa) |
1.6 4.0 6.4 |
|||||||||||
流量特性 |
快開 |
|||||||||||
壓力調節范圍(KPa) |
15~50、40~80、60~100、80~140、120~180、160~220、200~260、240~300、 280~350、330~400、380~450、430~500、480~560、540~620、600~700、680~800 780~900、880~1000、600~1500、1000~2500 |
|||||||||||
調節精度(%) |
±5 |
|||||||||||
工作溫度℃ |
液體≤120;氣體≤80;帶冷凝器和散熱片≤350(適用于高溫工況) |
|||||||||||
適用介質 |
執水、氣體、蒸汽、低粘度介質 |
|||||||||||
允許泄漏量 |
硬密封(L/h) |
單座≤10-4×閥額定容量(IV級);雙座、套筒≤5×10-3閥額定容量(II級 |
||||||||||
軟密封(ml/min) |
0.15 |
0.30 |
0.45 |
0.60 |
0.90 |
1.7 |
4.0 |
6.75 |
||||
減壓比 |
**** | 10 |
||||||||||
| **** | 1.25 |
|||||||||||
注:壓力調節范圍可根據用戶要求進行制做
【四】ZZY型自力式壓力調節閥外形連接尺寸:
公稱通徑(DN) |
20 |
25 |
32 |
40 |
50 |
65 |
80 |
100 |
125 |
150 |
200 |
|||
L |
PN16、40 |
150 |
160 |
180 |
200 |
230 |
290 |
310 |
350 |
400 |
480 |
600 |
||
PN64 |
230 |
230 |
260 |
260 |
300 |
340 |
380 |
430 |
500 |
550 |
650 |
|||
B |
383 |
512 |
603 |
862 |
1023 |
1380 |
1800 |
|||||||
H |
壓力 調節 范圍 MPa |
15~140 |
475 |
520 |
540 |
710 |
780 |
840 |
880 |
915 |
||||
130~300 |
455 |
500 |
520 |
690 |
760 |
800 |
870 |
880 |
||||||
280~500 |
450 |
490 |
510 |
680 |
750 |
790 |
860 |
870 |
||||||
480~1000 |
445 |
480 |
670 |
740 |
780 |
850 |
860 |
|||||||
600~1500 |
445 |
570 |
600 |
820 |
890 |
950 |
1000 |
|||||||
1000~2500 |
445 |
570 |
600 |
820 |
890 |
950 |
1000 |
|||||||
A |
壓力 調節 范圍 MPa |
15~140 |
φ280 |
φ308 |
||||||||||
130~300 |
φ230 |
|||||||||||||
280~1000 |
φ176 |
φ194 |
φ280 |
|||||||||||
600~2500 |
φ85 |
φ96 |
||||||||||||
導壓管接口螺紋 |
M16×15 |
|||||||||||||