一、波紋管截止閥產品介紹:
WJ41H波紋管截止閥用波紋管作為閥桿密封元件,可使閥桿部位無泄漏,以防止介質外漏的截止閥。沒有流體流失提高了使用能源效率增加生產設備安全性減少了維護費用及頻繁的維護保養降低經營成本,還提供了清潔安全的工作環境。適用于蒸汽、易燃、易爆、導熱油、高純度、有毒等介質的管路上。WJ41H波紋管截止閥采用雙重的密封設計若波紋管失效閥桿填料也會避免泄漏,波紋管焊于閥桿保持穩定的運行性能,避免由于閥塞振動引起閥桿振動。完全消除了普通閥門閥桿填料密封老化快易泄露的缺點,在高溫情況下,閥桿不與介質接觸,保證閥桿的零泄漏。
二、波紋管截止閥工作原理:
WJ41H波紋管截止閥內部采用波紋管結構,不銹鋼的波紋管下端焊接在閥桿上,以防止工藝流體浸蝕閥桿。另一端置于閥體和閥蓋之間構成靜密封。采用雙重的密封設計若波紋管失效閥桿填料也會避免泄漏,波紋管焊于閥桿保持穩定的運行性能,避免由于閥塞振動引起閥桿振動。
三、波紋管截止閥產品特點:
1、杜絕外泄漏并符合國際密封標準。
2、使用壽命長減少維護次數降低經營成本。
3、沒有流體損失降低能源損失提高工廠設備安全。
4、堅固耐用的波紋管密封設計保證閥桿的零泄漏提供無需維護的條件。
5、雙重的密封設計(波紋管+填料)若波紋管失效,閥桿填料也會避免。
四、波紋管截止閥技術規范:
| 結構形式 | BB-BG-OS&Y |
| 驅動方式 | 手動 |
| 氣動 | |
| 設計標準 | DIN3356 |
| 結構長度 | DIN3202 |
| 連接法蘭 | DIN2543-2545 |
| 試驗和檢驗 | DIN3230 |
五、波紋管截止閥產品性能規范:
| 公稱壓力(MPa) | 殼體試驗壓力(MPa) | 密封試驗壓力(MPa) | 適用溫度(℃) | 適用介質 |
| 1.6 | 2.4 | 1.76 | -20℃-350℃ | 水、蒸汽、油品等 |
| 2.5 | 3.75 | 2.75 | ||
| 4.0 | 6.0 | 4.4 |
六、波紋管截止閥主要零部件材質:

| 序號NO. | 名稱part name | 材質material |
| 1 | 閥體body | WCB、F304、F316 |
| 2 | 閥瓣disc | 2CR13、F304、F316 |
| 3 | 軸銷hinge pin | F304、F316 |
| 4 | 波紋管組件bellows combination | F304、F316L |
| 5 | 閥蓋bonnet | WCB、F304、F316 |
| 6 | 填料packing | 柔性石墨Flexible graphite、PTFE |
| 7 | 壓套gland | 25#、F304、F316 |
| 8 | 定位片locator | 25#、F304、F316 |
| 9 | 閥桿螺母stem nut | 銅合金ZQA19-4 |
| 10 | 手輪hand wheel | 碳鋼carbon steel |
| 11 | 并帽cap | 25# |
| 12 | 油杯oil cup | 黃銅brass |
| 13 | 六角螺母hexagon nut | ASTMA193 2H、A193-8、A193-8M |
| 14 | 雙頭螺栓bolt | ASTMA193 B7、A193-B8、A193-B8M |
| 15 | 墊片gasket | 柔性石墨+不銹鋼 flexible graphite+stainless steel、PTFE |
| 16 | 閥桿stem | 2Cr13、F304、F316 |
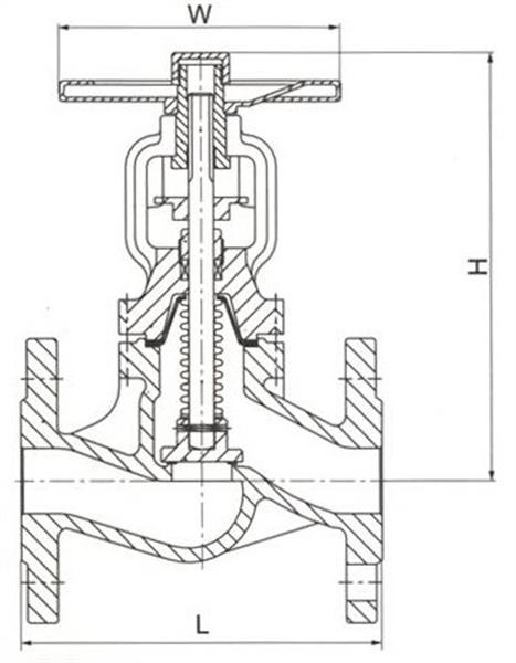
七、波紋管截止閥產品外形尺寸:

1、WJ41H-16
| 壓力等級 pressure |
PN16 | |||||||||||||
| 口徑size | 15 | 20 | 25 | 32 | 40 | 50 | 65 | 80 | 100 | 125 | 150 | 200 | 250 | 300 |
| L | 130 | 150 | 160 | 180 | 200 | 230 | 290 | 310 | 350 | 400 | 480 | 600 | 730 | 850 |
| H | 205 | 205 | 217 | 230 | 235 | 240 | 285 | 310 | 370 | 430 | 445 | 560 | 695 | 740 |
| W | 120 | 120 | 140 | 140 | 160 | 180 | 180 | 200 | 250 | 300 | 300 | 400 | 520 | 520 |
| 重量(kg)Weight | 4.5 | 4.8 | 5.5 | 7.8 | 9.5 | 12.7 | 18.6 | 23.5 | 39.5 | 56.8 | 76.1 | 115 | 237.2 | 399.5 |
| 行程h | 7 | 7 | 12 | 13 | 14 | 15 | 19 | 23 | 28 | 35 | 42 | 52 | 64 | 75 |
| Kv | 4.2 | 7.4 | 12 | 19 | 30 | 47 | 77 | 120 | 188 | 288 | 410 | 725 | 1145 | 1635 |
2、WJ41H-25
| 壓力等級 pressure |
PN25 | |||||||||||||
| 口徑size | 15 | 20 | 25 | 32 | 40 | 50 | 65 | 80 | 100 | 125 | 150 | 200 | 250 | 300 |
| L | 130 | 150 | 160 | 180 | 200 | 230 | 290 | 310 | 350 | 400 | 480 | 600 | 730 | 850 |
| H | 205 | 205 | 217 | 230 | 235 | 240 | 285 | 310 | 370 | 430 | 445 | 560 | 695 | 740 |
| W | 120 | 120 | 140 | 140 | 160 | 180 | 180 | 200 | 250 | 300 | 300 | 400 | 520 | 520 |
| 重量(kg)Weight | 4.5 | 4.8 | 5.5 | 8 | 9.8 | 13 | 19.2 | 24.3 | 43.7 | 57.9 | 81.6 | 137 | 288.1 | 420 |
| 行程h | 7 | 7 | 12 | 13 | 14 | 15 | 19 | 23 | 28 | 35 | 42 | 52 | 64 | 75 |
| Kv | 4.2 | 7.4 | 12 | 19 | 30 | 47 | 77 | 120 | 188 | 288 | 410 | 725 | 1145 | 1635 |
3、WJ41H-40
| 壓力等級 pressure |
PN40 | |||||||||||||
| 口徑size | 15 | 20 | 25 | 32 | 40 | 50 | 65 | 80 | 100 | 125 | 150 | 200 | 250 | 300 |
| L | 130 | 150 | 160 | 180 | 200 | 230 | 290 | 310 | 350 | 400 | 480 | 600 | 730 | 850 |
| H | 205 | 205 | 217 | 230 | 235 | 240 | 285 | 310 | 370 | 430 | 445 | 560 | 695 | 740 |
| W | 140 | 140 | 140 | 160 | 180 | 180 | 200 | 250 | 300 | 350 | 350 | 450 | 520 | 520 |
| 重量(kg)Weight | 4.5 | 4.8 | 5.5 | 8.3 | 10.5 | 13.6 | 20.5 | 25.6 | 46.1 | 61.2 | 85 | 159 | 308.5 | 445 |
| 行程h | 7 | 7 | 12 | 13 | 14 | 15 | 19 | 23 | 28 | 35 | 42 | 52 | 64 | 75 |
| Kv | 4.2 | 7.4 | 12 | 19 | 30 | 47 | 77 | 120 | 188 | 288 | 410 | 725 | 1145 | 1635 |